This website uses cookies.
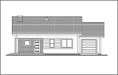
By using this website you consent to the use of cookies, according to the current browser settings.Boniface variant B house plan
Usable area: 63.03 m2 / The cost of the realization: 78 500 EUR
Price: 830 EUR
Description
Plans
Elevations
Situations
Variants (0)
Detailed drawings
List of materials
Comments (0)
Variant version with a garage. *Click on the link "download specific file" / see dimensioned drawingsu
Specifications:
Materials:
The costs of implementing:
| The raw state open | 0,00 EUR |
| The raw state closed | 0,00 EUR |
| The cost of finishing works | 0,00 EUR |
| Execution of turnkey home | 78 500,00 EUR |
Net notified costs, do not include VAT
Additions to the project:
To see simplified technical drawings of the house plan, please click on the link below. Select the house plan version that you interest - the basic or mirror version. The pdf file with dimensional drawings: floor plans, sections and elevations will open in a separate window. You can zoom in, zoom out and move the drawings on the screen. You can also print or save the drawings.
Bonifacy wariant B - plik szczegółowy
Bonifacy wariant B - plik szczegółowy - lustro

